Trilocale in vendita

Santarcangelo Di Romagna, Via San Bartolo
€ 260.000
3 locali 3 locali
105 Mq 105 Mq
1 bagno 1 bagno

Trilocale in vendita

Santarcangelo Di Romagna, Via San Bartolo

Descrizione annuncio

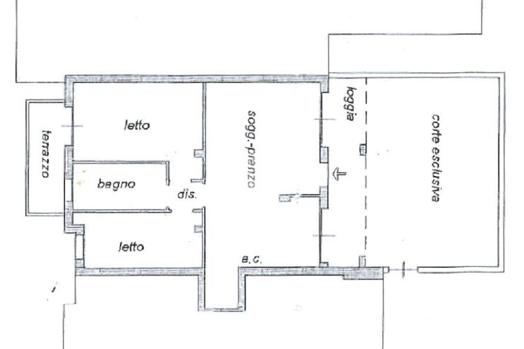
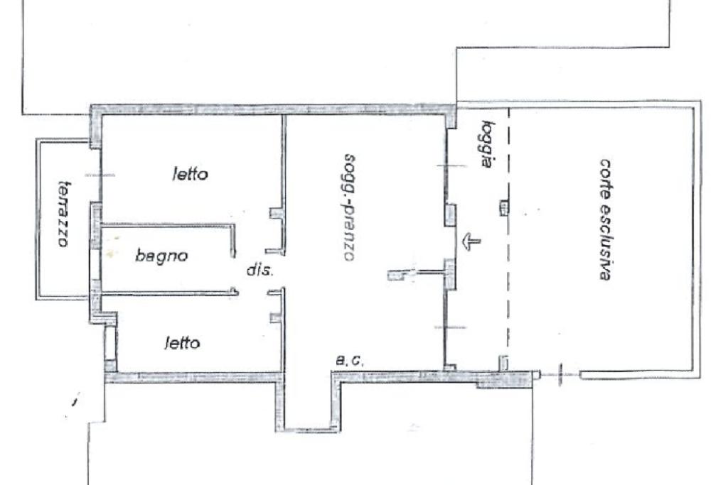
SANTARCANGELO, zona San Bartolo: in un contesto residenziale recente, tranquillo e ben servito, appartamento del 2006 situato al piano terra, caratterizzato da ingresso indipendente e da un giardino privato.

Lo sfogo esterno è valorizzato dal portico che, oltre ad essere ideale per momenti all’aria aperta, introduce all’interno dell’abitazione.

La zona giorno si presenta ampia e accogliente, caratterizzata dal soggiorno open space con cucina. Le finestre dell'ambiente garantiscono una luminosità naturale, valorizzando maggiormente gli spazi.

La zona notte comprende una camera matrimoniale con balcone, una camera singola e un bagno finestrato dotato di box doccia e angolo lavanderia.

Al piano interrato si trova un garage di circa 30 mq.

L’immobile si presenta in ottime condizioni in quanto è dotato di: riscaldamento termoidraulico, termocappotto, infissi in legno con doppio vetro e zanzariere, aria condizionata inverter caldo/freddo, videocitofono e portone blindato.

Ideale per chi cerca una soluzione ben definita e in una zona tranquilla senza rinunciare alla comodità dei servizi.

Per qualsiasi informazione potete contattarci o mandare un messaggio WhatsApp al nostro numero di telefono 05411416682 oppure passare a trovarci in ufficio, ci troviamo in via Ugo Braschi, 57, a Santarcangelo di Romagna pronti ad accogliervi!

Mostra tutto

Nelle vicinanze

Trasporto pubblico Trasporto pubblico
stazione di Santarcangelo di Romagna
stazione di Santarcangelo di Romagna
1,9 Km
Centre of city
Centre of city
1,5 Km
Ricariche auto elettriche Ricariche auto elettriche
Santarcangelo Fornaci | EnelX
850 m
Area Campana | EnelX
1,5 Km
Santarcangelo Pedrignone | EnelX
1,9 Km
Santarcangelo di Romagna Volontari della Libertà | EnelX
2,5 Km
EnelX EVA+ Santarcangelo Bertozzi
2,9 Km
Scuole Scuole
Elementari Pascucci
1,4 Km
Scuole
1,6 Km
Ist.Tecnico Commerciale R.Molari
2,1 Km
Scuola media Teresa Franchini
2,1 Km
scuola elementare
2,7 Km
Farmacia Farmacia
Pieralisi
480 m
dell'Angelo
1,4 Km
Farmacia dell'Ospedale
1,5 Km
Ospedali Ospedali
Ospedali
1,6 Km
Supermercati Supermercati
COOP Adriatica
770 m
A&O
1,6 Km
Lidl
2,7 Km
Negozi Negozi
Panificio Pasticceria Antico Forno Urbinati
1,6 Km
SGT corriere
2,7 Km
Bar Bar
Grand Cru Taproom
1,4 Km
Ristoranti Ristoranti
Piadineria dalla Quinta
290 m
Biopizza
750 m
Hot Stone
750 m
Ristoranti
1,1 Km
Monte Giove
1,2 Km
Mostra tutto

Caratteristiche

Rif.:
61147859
Piano:
Terra con giardino di 1
Totale piani:
1
Box:
1
Balconi:
1
Camere da letto:
2
Mostra tutto
Prezzo Prezzo
€ 260.000
Rata mutuo Rata mutuo
€ 1.227 / mese
Spese annue Spese annue
€ 350
Proponi il tuo prezzoProponi il tuo prezzo

Classe Energetica

E
E
E
E
E
E
E
E
E
Anno di costruzione:
2006
Riscaldamento:
Autonomo
Tipo impianto:
A radiatori
Tipo alimentazione:
Metano

Ti interessa visionare l'immobile?

Fissa un appuntamento  Fissa un appuntamento

Richiedi informazioni

Clicca su Leggi per aprire l'informativa
* Questi campi sono obbligatori

Calcola il tuo mutuo

Semplice e senza impegno
Anticipo

( % )
Mutuo

( % )

pochi semplici passi

inserisci i tuoi dati
Questionario completato
Grazie per aver richiesto un appuntamento senza impegno con un nostro Consulente del Credito e Assicurativo.

Hai inserito correttamente tutti i dati necessari e a breve riceverai una e-mail con un link da convalidare per inviare i tuoi dati.
Affiliato
Studio Athena Srl
Via Ugo Braschi, 57 47822 Santarcangelo Di Romagna (RN)

Il nostro staff


  • Anastasia Petrucci
    Affiliata

  • Alessandro Casadei
    Affiliato

  • Daniele Pellegrino
    Responsabile

  • Anita Rocchi
    Collaboratrice

  • Djerka Isenovska
    Coordinatrice
Via Ugo Braschi, 57 47822 Santarcangelo Di Romagna (RN)
Zona: Santarcangelo Di Romagna-San Michele - Canonica - Lo Stradone - Borghi
Mostra su mappa
Orari: Lun - Ven: 09:00 - 13:00; 15:00 - 19:30; Sab: 09:00 - 13:00
Affiliato
Studio Athena Srl
Via Ugo Braschi, 57 47822 Santarcangelo Di Romagna (RN)

2025 Tecnocasa Franchising S.p.A. - P. IVA 08365160152 - Via Monte Bianco 60/A 20089 Rozzano (MI). Ogni agenzia ha un proprio titolare ed è autonoma. Privacy policy | Policy utilizzo | Cookie policy